
PROJETOS
RETROFIT
Atendemos a projetos de retrofit para readequar instalações e melhorar processos. Removemos equipamentos/dispositivos descontinuados e instalamos produtos de ultima geração no mercado. Fornecemos treinamento para os colaboradores envolvidos no RETROFIT.
Projeto Retrofit Desagregador de Refugo, processo baseado em desagregar papel branco de refugo, fazer adição de água junto ao controle de consistência de massa da polpa e controlar envio da polpa para seus tanques destinatários. Foi retirado controladores Smar CD600 descontinuados do mercado e instalado o moderno MicroLogix850 e IHM PanelView 7PLUS da Rockwell Automation contando com malhas de controle PID, trandutores I/P, transmissores de nível e consistência, relés de interface.
IHM PRENSAS MÁQUINA DE PAPEL
O antigo sistema em questão contava com botões físicos de comando elétrico 110Vac, com repetidas falhas de acionamento indesejados e não realizados que afetam o OEE, instalados duas IHM redundantes PanelView 7 Plus comunicando Ethernet/IP com Gateway Prosoft e PLC5/60. Com isto melhoramos a questão de falhas indesejadas, criamos históricos de alarmes, tela de interlock de acionamentos e uma redução de custo por volta de R$140mil em rack de PLC5/60 visto que os comandos estão na IHM e trocando mensagens CIP, não sendo necessário cartão de entrada digital no Rack no PLC.


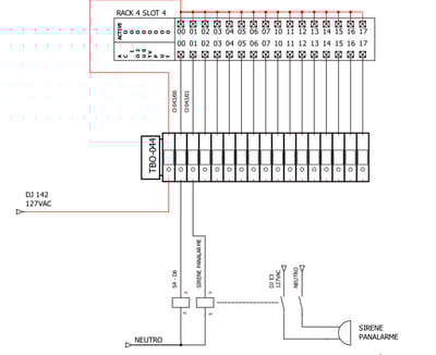
PAINEL DE ALARMES PRENSAS MÁQUINA PAPEL
O painel atual “PAN-ALARME” apresenta repetidas falhas de indicação falsa de alarme, devido a problemas nos circuitos eletrônicos do mesmo. Por isso optamos por utilizar a IHM, minimizando falhas e até mesmo criando lista e histórico de alarmes.




















RMS AUTOMATION
Mogi Guaçu, São Paulo - Brasil
WhatsApp: (19) 99442-6136
E-mail: engenharia@rmsautomation.com.br
